86 Carveth Crescent, Newcastle, ON L1B 1N4
Toggle Navigation
Images
Videos
Floor Plans
Map
86 Carveth Crescent
Newcastle, ON L1B 1N4
Scroll to Content
Images
Slideshow
Photo Grid
Hide
Previous
Next
Show more
Videos
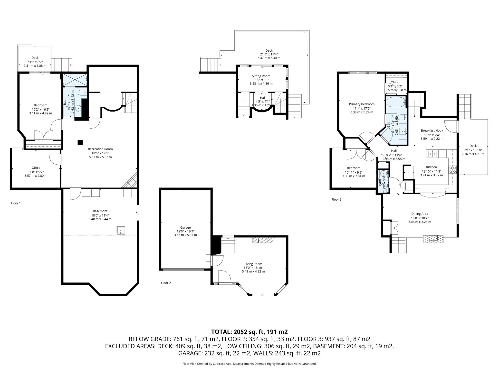
Floor Plans
Slideshow
Photo Grid
Hide
Previous
Next